Ardnawark, Barnesmore, Donegal Town
2 No. Excellent Residential Sites
With Full Planning Permission Granted
Situate just 425 metres off the Donegal Town / Letterkenny N15 Roadway, only 1.5 km from the famous “Biddy’s O’Barnes” Bar & Restaurant & 8.5 km north of Donegal Town.
Site No. 1. Extending to 0.487 hectares (1.20 acres)
Planning Ref. 23/50621 Full Planning Granted Dec 2023 for –
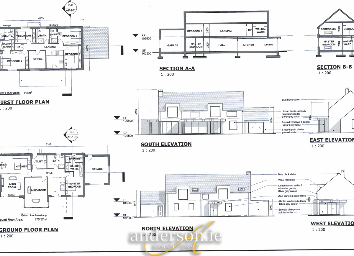
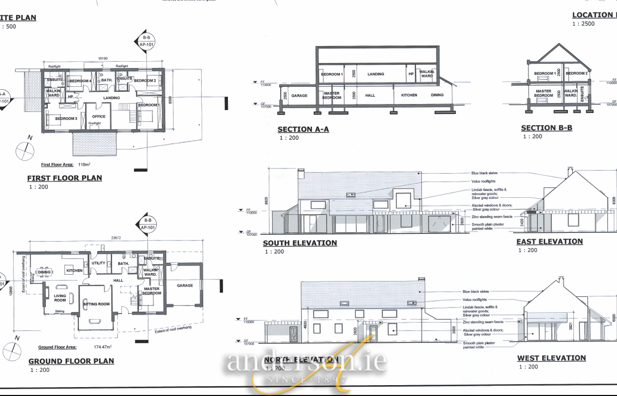
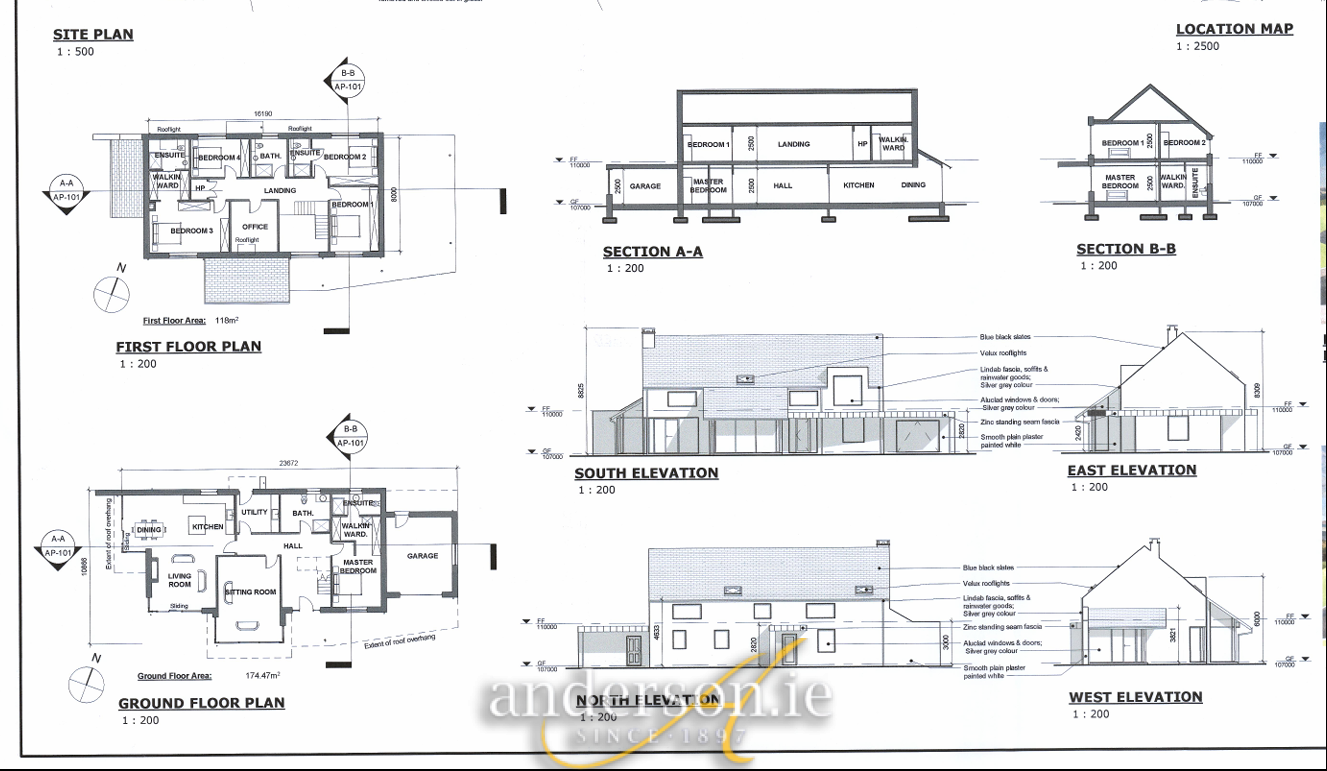
Two Storey Detached – 293.37 sq.m. (3156 sq.ft.)
Ground Floor. Living Room, Living / Kitchen / Dining, Utility, 1 No. Bedroom (en-suite) & Garage
First Floor. 4 No. Bedrooms (2 en-suite), Office & Bathroom
Site No. 2 Extending to 0.503 hectares (1.24 acres)
Planning Ref. 23/50620 Full Planning Granted Dec 2023 for –
Two Storey Detached – 293.37 sq.m. (3156 sq.ft.)
Ground Floor. Living Room, Living / Kitchen / Dining, Utility, 1 No. Bedroom (en-suite) & Garage
First Floor. 4 No. Bedrooms (2 en-suite), Office & Bathroom
Price Guide per Site – € 60,000









